Technical information
Technical specification:
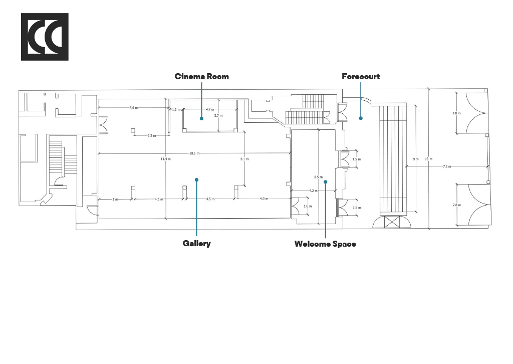
Dimensions
- 180 sqm of floor space
- 12 sqm storage/break out space
- 35 sqm welcome lobby
- 100 sqm outdoor forecourt space
Power supply & lighting
- Adjustable, museum quality track lighting installed by art lighting specialists, TM lighting
- Dimmable central light box
- Multiple power sockets
- 32 amp 3-phase and 32 amp single phase commando socket in forecourt
Capacity
- Standing capacity - 180
- Dining seating capacity (cabaret or long tables) – 140
- Conference seating capacity (theatre) – 120
Miscellaneous
- CCTV security
- Intruder alarm system
- Disabled access
- Free WiFi
- Built-in projector and screen
- Excellent acoustics
- Dry hire venue
- List of recommended suppliers available
Crafts Council Gallery floorpan
Library area set up for a workshop. (Image: Joe Humphrys)





